Проект
TA
Тип:
Жилищен
интериор
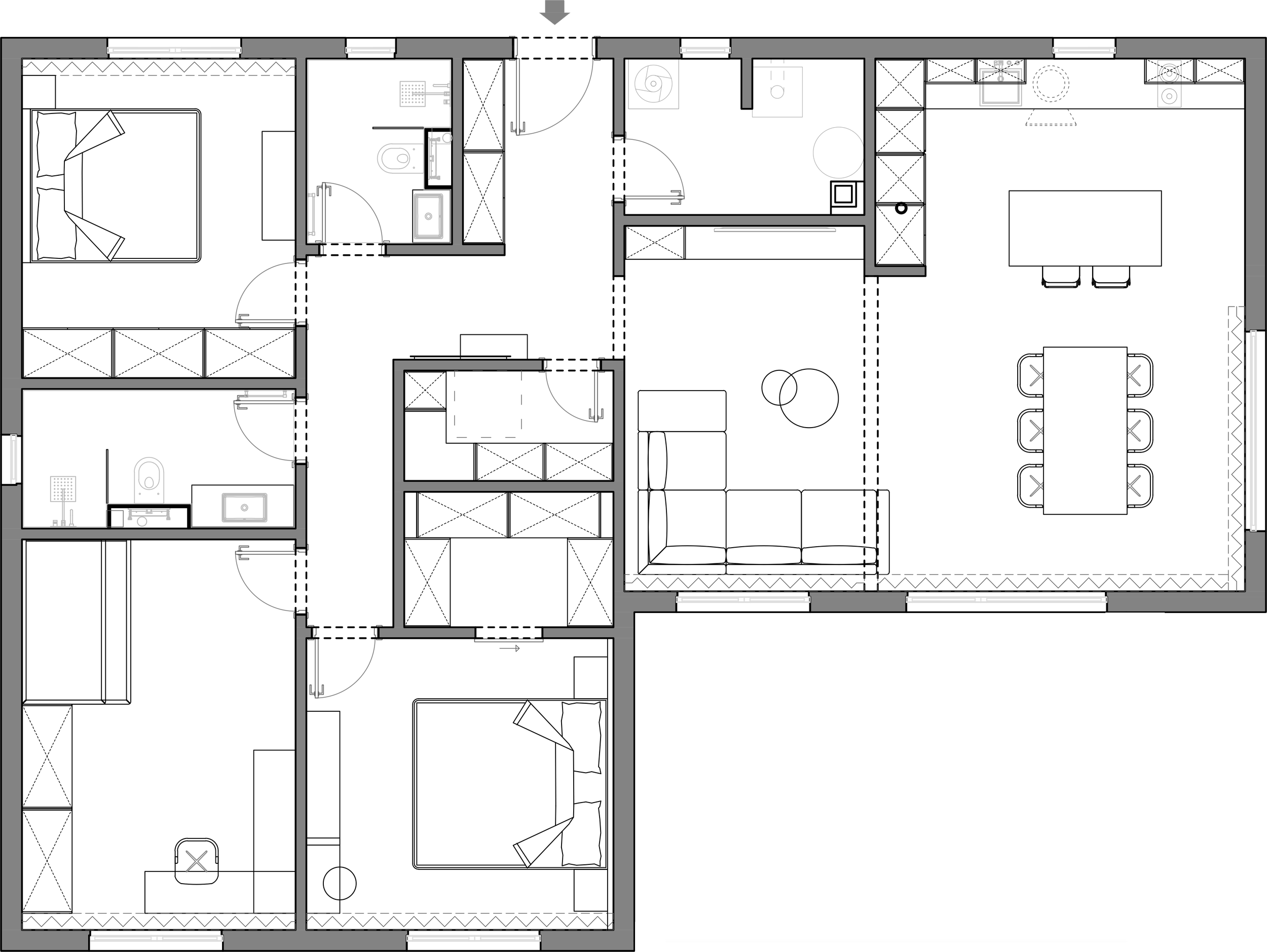
Обща площ:
116 кв. м.
Година:
2024
Разпределение
Проект
Тип:
Жилищен
интериор
Обща площ:
116 кв. м.
Година:
2024
Разпределение