0
Skip to Content
Open Menu
Close Menu
Open Menu
Close Menu
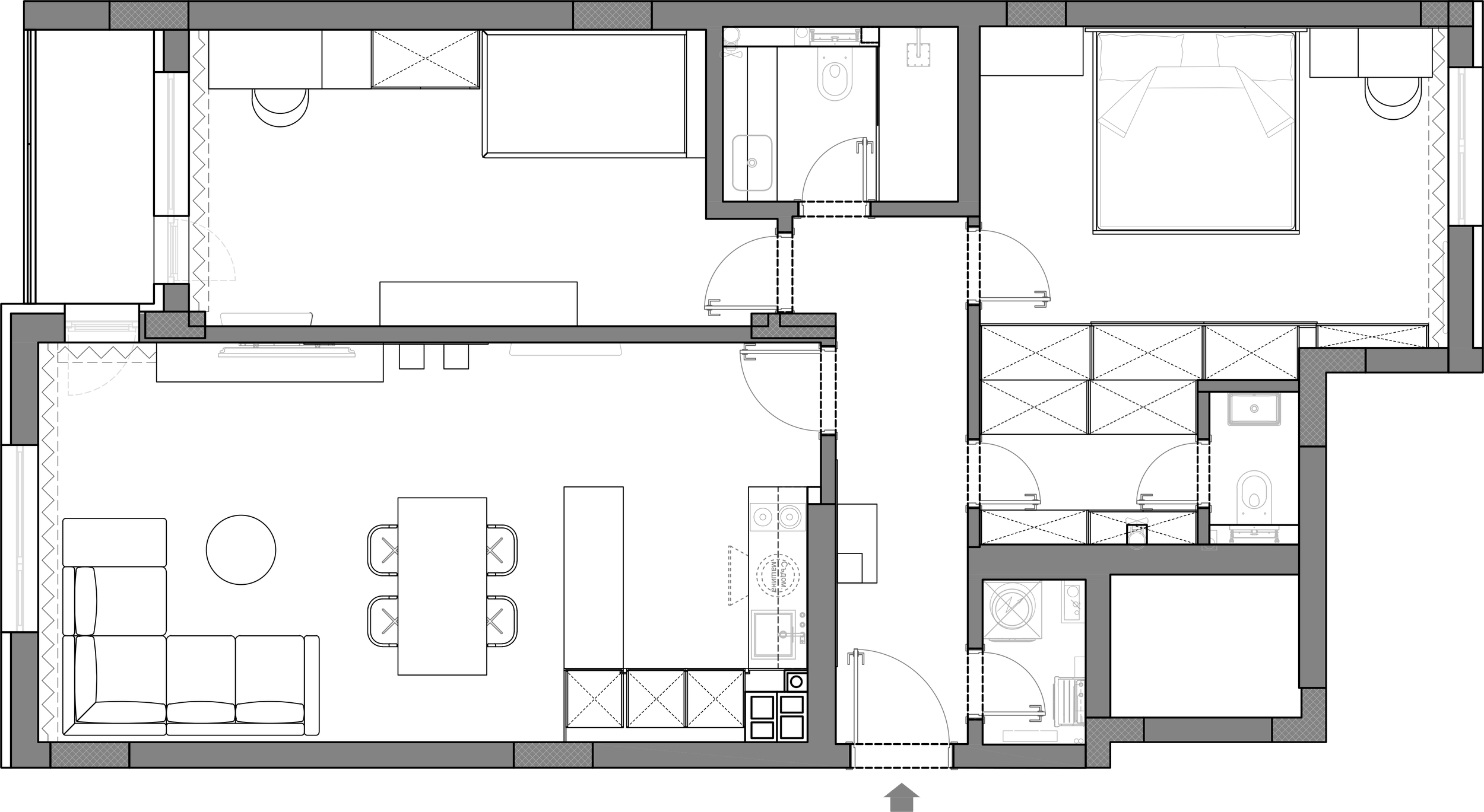
Проект
VTA
Тип:
Жилищен
интериор
Обща площ:
83 кв. м.
Година:
2024
Разпределение